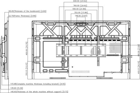
Monitor interaktywny Dahua LPH75-ST410-S2
Symbol : 66439
Dostupnosť:
4
Ks.
: 3591.75
: 3591.75